intertec85
intertec85-1

INTERTEC 85

0.76*

W/m²K

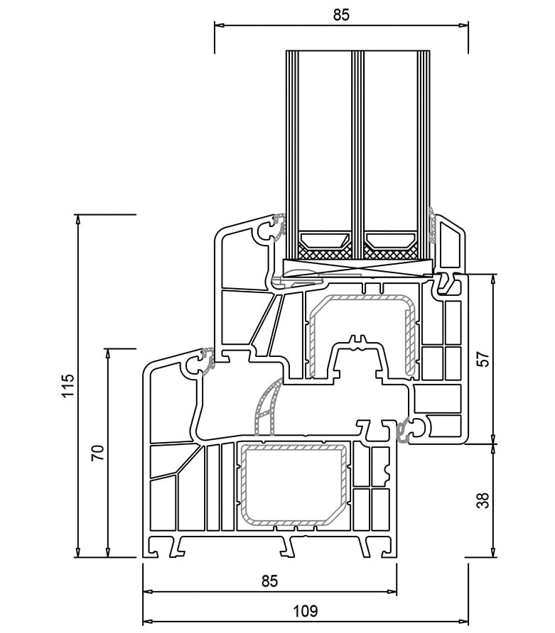
  • 7 kamrás rendszer
  • 85mm-es beépítési mélység
  • Középső tömítésű rendszer (3 tömítés)
  • Klasszikus kialakítású szárny (classic-line ragasztás nélkül)
  • Számos színvariációban kapható
  • Az Uw hőátbocsátási tényező 0,76 W/m²K
    (1.230*1.480 mm-es referenciaablakméret esetén Ug = 0,5 W/m2K)
7
Kamra
3
Tömítés
85
Beépítési mélység
48
Üvegezési csomagok max. (mm)
V
Hegesztés V-Perfect*
MM
Maco Vasalat Multi Matic*
*A 1230*1480mm méretű referencia ablakra, Ug = 0,5 W/m2K
*Felárért kapható
*A zárt acélkeret nem alapfelszereltség, a felárat a felár árjegyzék szerint kell hozzáadni.

Az Aluplast Intertec 85 egy fejlett ablakprofil-rendszer, amely az innovatív megoldások alkalmazásának köszönhetően az ablaknál kiváló műszaki paramétereket és magas szintű használati kényelmet biztosít.

A rendszer profiljait klasszikus design jellemzi, kiegyensúlyozott arányokkal, tökéletesen illeszkedve az aktuális trendekhez.

SZABVÁNY ALUPLAST SZÍNEK

colorCube
Mahagóni
colorCube
Sötét Tölgy
colorCube
Arany Tölgy
colorCube
Dió
colorCube
Paliszander
colorCube
Szürke
colorCube
Antracit
colorCube
Antracit Homok
colorCube
Khaki Tölgy
colorCube
Turner Tölgy
colorCube
Sheffield Tölgy Alpina
colorCube
Sheffield Tölgy Beton
colorCube
Turner Tölgy Toffee
colorCube
Traffic Fehér
colorCube
Szürke
colorCube
Árnyékszürke
colorCube
Bazalt Szürke
colorCube
DB703
colorCube
Antracit Szürke
colorCube
Jet Black

Katalógus letöltése

Katalógus Megtekintése Új Fülön

További termékeink ebben a kategóriában

INTERTEC 85

intertec85ablak