mdrive
mdrive-1

M-DRIVE

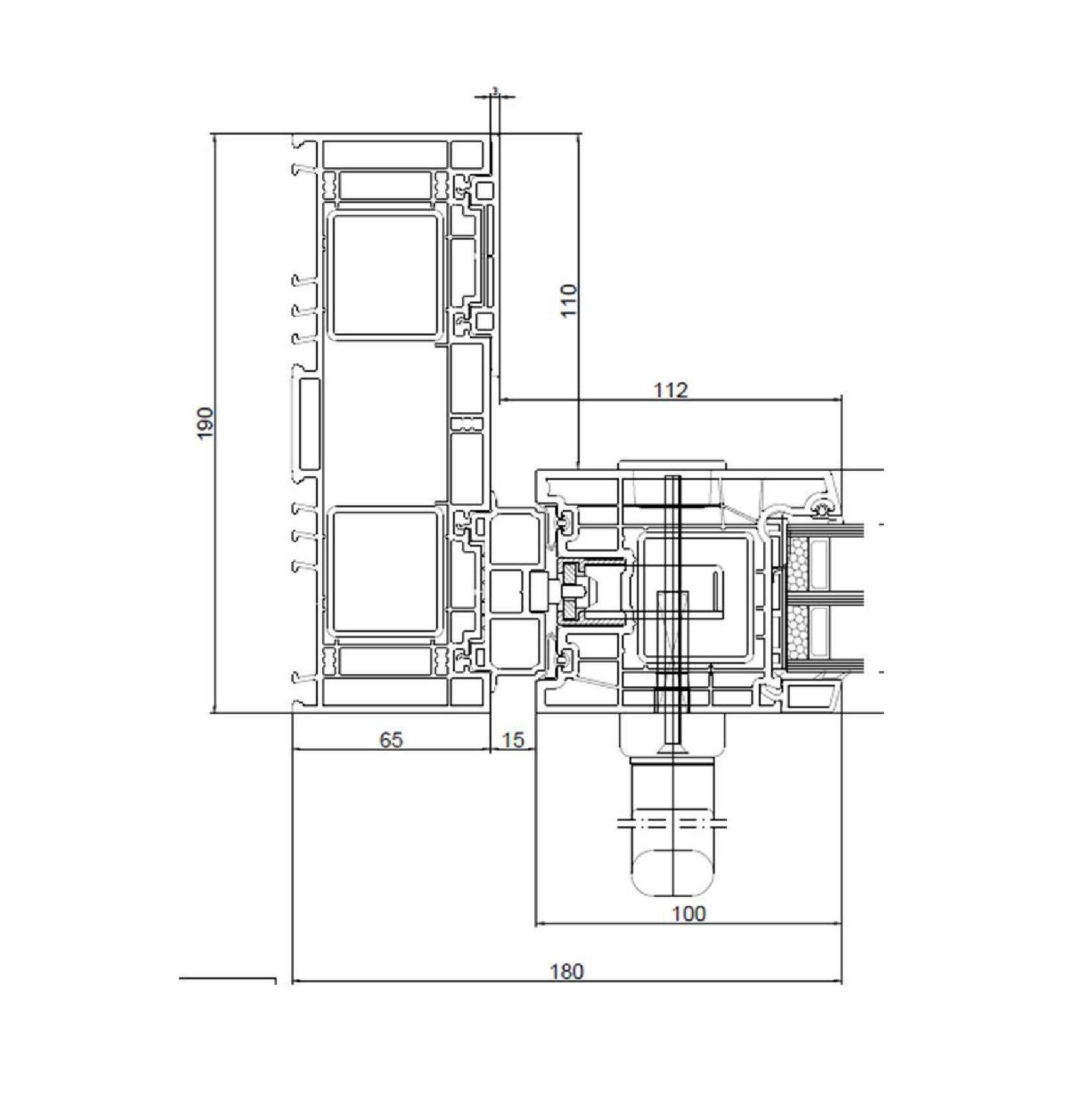
  • Szárny beépítési mélysége 80 mm
  • Keret beépítési mélysége 190 mm
  • Magasság: Keret + Szárny = 180 mm, Szárny + Küszöb = 152 mm
  • 51 mm-es csomagokkal történő üvegezés lehetősége
  • Meleg és stabil többkamrás küszöb
  • A és K séma kivitelezése lehetséges
  • Betörés elleni védelem RC2 osztályig

FEDEZZE FEL A NYITÁS ÚJ KÖNNYEDSÉGÉT

A mérnököknek az M-DRIVE megolkatása során az volt a vágyuk, hogy elérjék a maximális hatékonyságot a gyártás maximális egyszerűsítésével miközben a rendszerelemek számát minimalizálják. Így jött létre a HS M-Drive emelő és tolóajtó. Az alapelemek a következők - 190 mm beépítési mélységű keret acélmerevítéssel, amely a Therm kivitelben van hőszigetelő töltéssel kiegészítve, és az ssh profil 80 mm-es beépítési mélységgel. A rendszert egy rendkívül "meleg" többkamrás küszöb egészíti ki.

A HS M-Drive ajtók a színfóliák teljes választékában kaphatóak beleértve az ismert márkák profiljaiban használt dekoratív fóliákat.

Katalógus letöltése

Katalógus Megtekintése Új Fülön